Image - (Portfolio) HRADEC Renovation of Grandma’s House - 1
Back

Villa HRADEC

In this project, we faced many challenges that led us to unexpected solutions. The house in Hradec, neglected due to unsuitable interventions from the 1980s, was a real challenge. However, from the very first visit, we were impressed by its generous space and beautiful staircase, which became a key element in restoring the original elegance. We removed the impractical layout, connected the living area with the kitchen and dining room, and even added luxurious bathrooms with large windows to the bedrooms. During the renovation, we uncovered hidden treasures, such as the original sandstone staircase and brick vaults in the basement, which we used to create a wine cellar connected to the dining room. Every step of the renovation revealed new possibilities for not only saving the house but bringing it to life in a new form, all while respecting its original elegance.

Renovation of Grandma’s House

The renovation of Grandma’s house in Hradec is one of the cases we discussed in our previous article on house renovations. In this instance, not only was it a family inheritance, but the villa itself was a unique property, making its preservation all the more meaningful. The house holds great potential for the future.

Image - (Portfolio) HRADEC Renovation of Grandma’s House - 2
Image - (Portfolio) HRADEC Renovation of Grandma’s House - 3 Image - (Portfolio) HRADEC Renovation of Grandma’s House - 4 Image - (Portfolio) HRADEC Renovation of Grandma’s House - 5
Image - (Portfolio) HRADEC Renovation of Grandma’s House - 6

What we started with

The original condition was severely neglected—pipes were clogged, the basement filled with dirt, and the layout overly complicated. The house had been subjected to several inappropriate interventions during the 1980s, leaving it in poor shape with illogical partitions and awkward bathroom arrangements. We began by tearing down non-original partitions and sealed doorways. When removing the wooden panel ceilings, we discovered the underside of the original sandstone staircase leading to the attic. There were several such surprises throughout the process, prompting us to adjust and adapt the design to incorporate the original structures.

Image - (Portfolio) HRADEC Renovation of Grandma’s House - 7 Image - (Portfolio) HRADEC Renovation of Grandma’s House - 8 Image - (Portfolio) HRADEC Renovation of Grandma’s House - 9
Image - (Portfolio) HRADEC Renovation of Grandma’s House - 10 Image - (Portfolio) HRADEC Renovation of Grandma’s House - 11 Image - (Portfolio) HRADEC Renovation of Grandma’s House - 12

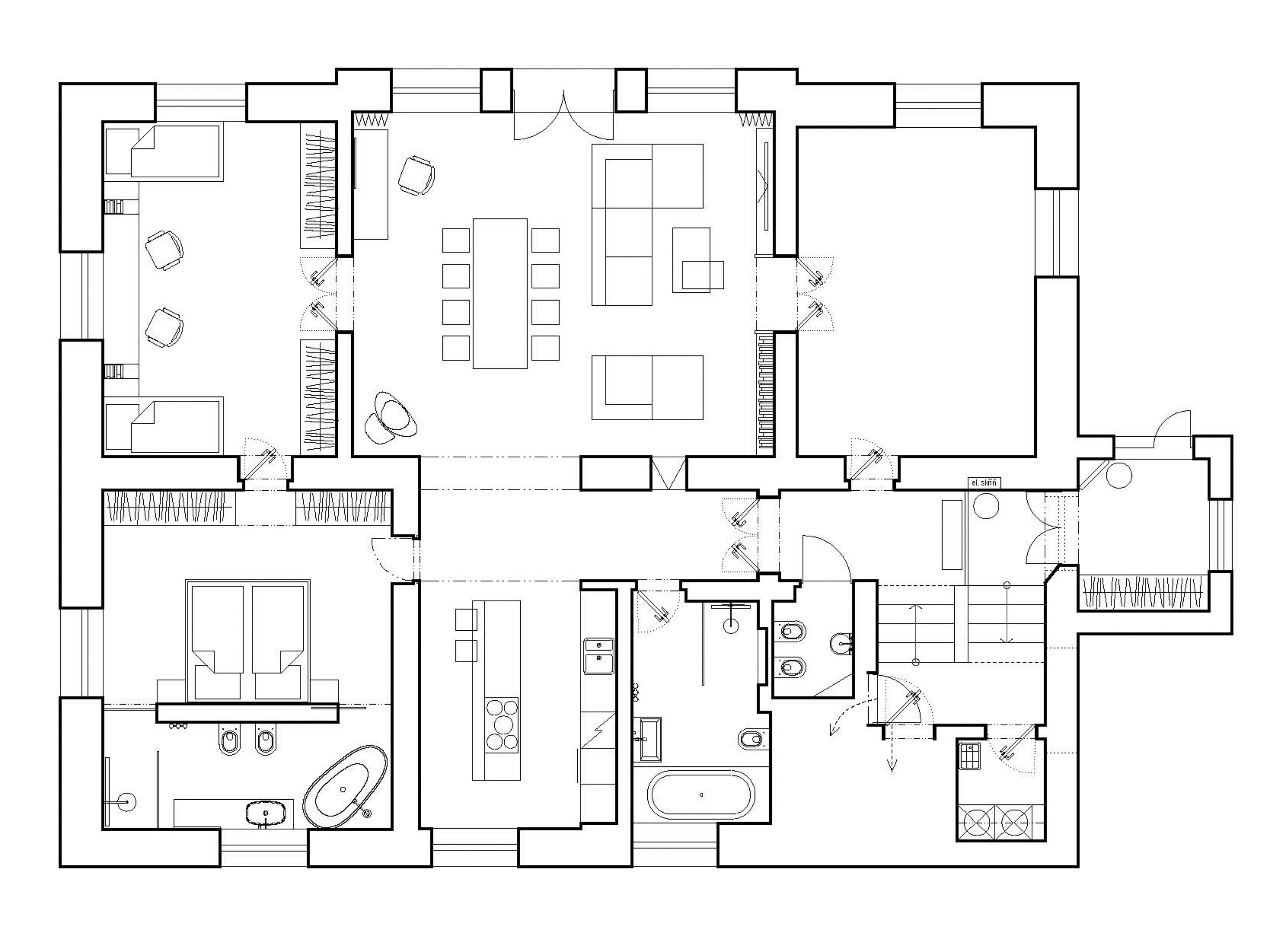
Intervention in the layout

In every renovation, we carefully seek the original essence and strive to revive and enhance everything that remains from the past. From the first impression, the staircase and generous access to the garden stood out. We decided to restore the house’s original elegance, which led us to completely redesign the internal layout. We placed the main living area at the heart of the house, removed the long hallway, and connected the living room with the kitchen and dining area. We added bathrooms to the bedrooms along the perimeter of the house, and in the master bedroom, we even managed to install a bathroom with a large window, not just a small one, which brings an extraordinary sense of luxury to the space.

Image - (Portfolio) HRADEC Renovation of Grandma’s House - 13
Image - (Portfolio) HRADEC Renovation of Grandma’s House - 14
Image - (Portfolio) HRADEC Renovation of Grandma’s House - 15

We will use whatever we can

A problem arose when we uncovered the roof structure and ceiling beams, which were in poor condition. With the help of a structural engineer, we restored the roof framework. The old bricks were repurposed in the basement, and the attic is now awaiting future use. Some of the wooden elements were incorporated into the furniture details. The attic has incredible potential for the future, whether for additional bedrooms or a spacious yoga studio. Time will tell which use will be the best fit.

Image - (Portfolio) HRADEC Renovation of Grandma’s House - 16

Unexpected benefits

The basement was initially filled with dirt, preventing the house from ventilating properly and causing dampness. After cleaning it out, the beautiful brick vaults were revealed. Lighting these transformed the space into a charming wine cellar, which we connected to the dining room above with a glass hatch. This created an interesting feature in the living area as well. Paradoxically, after drying out the basement, we found that the house was built on sand, and the sand had lost its original moisture content since the house’s construction, causing the building to settle. This led to cracks in the walls, which we had to address.

Image - (Portfolio) HRADEC Renovation of Grandma’s House - 17
Image - (Portfolio) HRADEC Renovation of Grandma’s House - 18 Image - (Portfolio) HRADEC Renovation of Grandma’s House - 19 Image - (Portfolio) HRADEC Renovation of Grandma’s House - 20
Image - (Portfolio) HRADEC Renovation of Grandma’s House - 21
Image - (Portfolio) HRADEC Renovation of Grandma’s House - 22

We’re not afraid to combine

We commissioned a replica of the original garden doors, added paneling to the walls, and contrasted this with modern furniture—concrete kitchen counters with brass details and “prints” on the plaster, velvet sofas with simple shapes, and a dining table made from old boards found in the attic. Unfortunately, the original wooden floors couldn’t be saved, so we replaced them with solid flooring laid in a French herringbone pattern. In the bathrooms, we combined historical-style tiles with modern plaster finishes to create a nod to the past.

Image - (Portfolio) HRADEC Renovation of Grandma’s House - 23 Image - (Portfolio) HRADEC Renovation of Grandma’s House - 24 Image - (Portfolio) HRADEC Renovation of Grandma’s House - 25
Image - (Portfolio) HRADEC Renovation of Grandma’s House - 26 Image - (Portfolio) HRADEC Renovation of Grandma’s House - 27 Image - (Portfolio) HRADEC Renovation of Grandma’s House - 28

Was the rescue worth it?

This project is an example of a renovation that, despite being much more challenging than we originally anticipated, turned out beautifully. Yes, it would have been easier to demolish the house and build something new in its place, but we would have lost a remarkable gem with its own unique charm. And this is precisely why we love renovations—it’s a dynamic process of uncovering hidden treasures, constantly solving unexpected problems, and making compromises along the way. It also requires an enlightened client who has the desire and will to save and breathe new life into such properties. It’s a demanding process, but that’s what makes it so rewarding.

Image - (Portfolio) HRADEC Renovation of Grandma’s House - 29
Image - (Portfolio) HRADEC Renovation of Grandma’s House - 30 Image - (Portfolio) HRADEC Renovation of Grandma’s House - 31 Image - (Portfolio) HRADEC Renovation of Grandma’s House - 32
Image - (Portfolio) HRADEC Renovation of Grandma’s House - 33
Image - (Portfolio) HRADEC Renovation of Grandma’s House - 34
Image - (Portfolio) HRADEC Renovation of Grandma’s House - 35

Why we love renovations

You can find more examples of home RENOVATIONS  on our blog. Read examples of how houses can be renovated, how we approach individual projects and what makes sense to highlight. Home renovations are a topic that we enjoy the most.

—  Let's meet!

Do you have a similar project that you would like to discuss with us? Fill out this short questionnaire, let us know a little about your project and we will get back to you soon.



By submitting, I agree to the processing of personal data.


×

by Radka - 15. 10. 2024

Sign up to our news